|
J41H/Y型国标截止阀属于强制密封式阀门,所以在阀门关闭时,必须向阀瓣施加压力,以强制密封面不泄漏。当介质由阀瓣下方进入阀六时,操作力所需要克服的阻力,是阀杆和填料的摩擦力与由介质的压力所产生的推力,关阀门的力比开阀门的力大,所以阀杆的直径要大,否则会发生阀杆顶弯的故障。国标截止阀开启时,阀瓣的开启高度,为公称直径的25%~30%时,流量已达到最大,表示阀门已达全开位置。所以截止阀的全开位置,应由阀瓣的行程来决定。 国标截止阀具有以下优点: 1、结构简单,制造和维修比较方便。 2、工作行程小,启闭时间短。 3、密封性好,密封面间磨擦力小,寿命较长。 主要性能参数 型号 | PN | 工作压力 / MPa | 适用温度 / ℃ | 适用介质 | J41H/Y-16C~160C | 16~160 | 1.6~16.0 | ≤425 | 水、蒸汽、油品 | J41H/Y-16P~160P | ≤150 | 弱腐蚀性介质 | J41H/Y-16R~160R | 腐蚀性介质 | J41H/Y-16I~160I | ≤550 | 油品、蒸汽 |
主要零件材质: 零件名称 | ZGICr18 Ni9Ti | ZG00Cr18 Ni10 | ZG1Cr18 Ni12M02Ti | ZG00Cr17Ni14M02 | WCB | 阀体/阀盖 | ZGICr18 Ni9Ti | ZG00Cr18 Ni10 | ZG1Cr18 Ni12M0 2 Ti | ZG00Cr17Ni14M0 2 | WCB | 阀瓣 | ZGICr18 Ni9Ti | ZG00Cr18 Ni10 | ZG1Cr18 Ni12M0 2 Ti | ZG00Cr17Ni14M0 2 | 1Cr13 | 阀杆 | 1Cr18 Ni9Ti | 00Cr18 Ni10 | 1Cr18 Ni12M0 2 Ti | 00Cr17Ni14M0 2 | 1Cr13 | 填料 | PTFE编织 | PTFE编织 | PTFE编织 | PTFE编织 | 石墨 | 垫片 | 304+PTFE | 304L+PTFE | 316+PTFE | 316L+PTFE | 石墨+304 | 压盖 | ZGICr18 Ni9Ti | ZG00Cr18 Ni10 | ZG1Cr18 Ni12M0 2 Ti | ZG00Cr17Ni14M0 2 系列 | WCB | 填料压环 | 1Cr18 Ni9Ti | 00Cr18 Ni10 | 1Cr18 Ni12M0 2 Ti | 00Cr17Ni14M0 2 | 1Cr13 | 螺栓 | 1Cr17Ni2 | 1Cr17Ni2 | 1Cr17Ni2 | 1Cr17Ni2 | 35CrMoA | 螺母 | 1Cr18 Ni9Ti | 1Cr18 Ni9Ti | 1Cr18 Ni9Ti | 1Cr18 Ni9Ti | 45 |
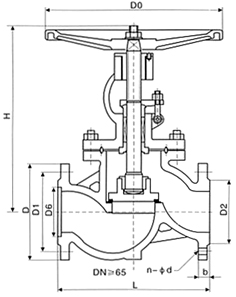
主要外形连接尺寸 
1.6Mpa 突面法兰 | DN | L | D | D1 | D2 | b | z×ød | H | D0 | 10 | 130 | 90 | 60 | 40 | 14 | 4×ø14 | 198 | 120 | 15 | 130 | 95 | 65 | 45 | 14 | 4×ø14 | 200 | 120 | 20 | 150 | 105 | 75 | 55 | 14 | 4×ø14 | 243 | 140 | 25 | 160 | 115 | 85 | 65 | 14 | 4×ø14 | 253 | 160 | 32 | 180 | 135 | 100 | 78 | 15 | 4×ø18 | 280 | 160 | 40 | 200 | 145 | 110 | 85 | 16 | 4×ø18 | 312 | 200 | 50 | 230 | 160 | 125 | 100 | 16 | 4×ø18 | 321 | 200 | 65 | 290 | 180 | 145 | 120 | 18 | 4×ø18 | 325 | 240 | 80 | 310 | 195 | 160 | 135 | 20 | 4×ø18 | 355 | 240 | 100 | 350 | 215 | 180 | 155 | 20 | 4×ø18 | 415 | 280 | 125 | 400 | 245 | 210 | 185 | 22 | 4×ø18 | 460 | 320 | 150 | 480 | 280 | 240 | 210 | 24 | 8×ø23 | 510 | 360 | 200 | 600 | 335 | 295 | 265 | 26 | 12×ø23 | 590 | 360 |
2.5MPa | DN | L | D | D1 | D2 | b | n-Φd | H | D0 | 突面法兰 | 10 | 130 | 90 | 60 | 40 | 16 | 4-Φ14 | 198 | 120 | 15 | 130 | 95 | 65 | 45 | 16 | 4-Φ14 | 218 | 120 | 20 | 150 | 105 | 75 | 55 | 16 | 4-Φ14 | 258 | 140 | 25 | 160 | 115 | 85 | 65 | 16 | 4-Φ14 | 275 | 140 | 32 | 180 | 135 | 100 | 78 | 18 | 4-Φ18 | 280 | 160 | 40 | 200 | 145 | 110 | 85 | 18 | 4-Φ18 | 330 | 180 | 50 | 230 | 160 | 125 | 100 | 20 | 4-Φ18 | 350 | 200 | 65 | 290 | 180 | 145 | 125 | 22 | 8-Φ18 | 400 | 280 | 80 | 310 | 195 | 160 | 135 | 22 | 8-Φ18 | 355 | 280 | 100 | 350 | 230 | 190 | 160 | 24 | 8-Φ23 | 415 | 320 | 125 | 400 | 270 | 220 | 188 | 28 | 8-Φ25 | 460 | 360 | 150 | 480 | 300 | 250 | 218 | 30 | 8-Φ25 | 510 | 450 | 200 | 600 | 360 | 310 | 278 | 34 | 12-Φ25 | 710 | 500 | 250 | 622 | 425 | 370 | 332 | 36 | 12-Φ30 | 786 | 550 | 300 | 698 | 485 | 430 | 390 | 40 | 16-Φ30 | 925 | 600 |
4.0MPa | DN | L | D | D1 | D2 | D6 | b | n-Φd | H | D0 | 凹凸法兰 MFM J41H J41Y J41W J41N 40 40P 40R 40I | 10 | 130 | 90 | 60 | 41 | 35 | 14 | 4-Φ14 | 198 | 120 | 15 | 130 | 95 | 65 | 45 | 40 | 16 | 4-Φ14 | 233 | 120 | 20 | 150 | 105 | 75 | 55 | 51 | 16 | 4-Φ14 | 295 | 140 | 25 | 160 | 115 | 85 | 65 | 58 | 16 | 4-Φ14 | 285 | 160 | 32 | 180 | 135 | 100 | 78 | 66 | 18 | 4-Φ18 | 302 | 160 | 40 | 200 | 145 | 110 | 85 | 76 | 18 | 4-Φ18 | 355 | 200 | 50 | 230 | 160 | 125 | 100 | 88 | 20 | 4-Φ18 | 373 | 200 | 65 | 290 | 180 | 145 | 120 | 110 | 22 | 8-Φ18 | 408 | 280 | 80 | 310 | 195 | 160 | 135 | 121 | 22 | 8-Φ18 | 436 | 280 | 100 | 350 | 230 | 190 | 160 | 150 | 24 | 8-Φ23 | 480 | 320 | 125 | 4001 | 270 | 220 | 188 | 176 | 28 | 8-Φ25 | 588 | 360 | 150 | 480 | 300 | 250 | 218 | 204 | 30 | 8-Φ25 | 611 | 400 | 200 | 600 | 375 | 320 | 282 | 260 | 38 | 12-Φ30 | 720 | 400 | 6.4MPa | 15 | 170 | 105 | 75 | 55 | 40 | 18 | 4-14Φ | 195 | 400 | 凹凸法兰 MFM J41H J41Y J41W J41N 64 64P 64R 64I | 20 | 190 | 125 | 90 | 68 | 51 | 20 | 4-Φ18 | 228 | 160 | 25 | 210 | 135 | 100 | 78 | 58 | 22 | 4-Φ18 | 275 | 180 | 32 | 230 | 150 | 110 | 82 | 66 | 24 | 4-Φ23 | 325 | 200 | 40 | 260 | 165 | 125 | 95 | 76 | 24 | 4-Φ23 | 360 | 240 | 50 | 300 | 175 | 135 | 105 | 88 | 26 | 4-Φ23 | 410 | 280 | 65 | 340 | 200 | 160 | 130 | 110 | 28 | 8-Φ23 | 450 | 320 | 80 | 380 | 210 | 170 | 140 | 121 | 30 | 8-Φ23 | 485 | 360 | 100 | 430 | 250 | 200 | 168 | 150 | 32 | 8-Φ25 | 537 | 400 | 125 | 500 | 295 | 240 | 202 | 176 | 36 | 8-Φ30 | 631 | 400 | 150 | 550 | 340 | 280 | 240 | 204 | 38 | 8-Φ34 | 646 | 450 | 200 | 650 | 405 | 345 | 300 | 260 | 44 | 12-Φ34 | 813 | 500 | 10.0MPa | 10 | 170 | 100 | 70 | 50 | 35 | 20 | 4-Φ14 | 198 | 140 | 凹凸法兰 MFM J41H J41Y J41W 100 100P 100R 100I | 15 | 170 | 105 | 75 | 55 | 40 | 20 | 4-Φ14 | 202 | 140 | 20 | 190 | 125 | 90 | 68 | 51 | 22 | 4-Φ18 | 228 | 160 | 25 | 210 | 135 | 100 | 78 | 58 | 24 | 4-Φ18 | 250 | 180 | 32 | 230 | 150 | 110 | 82 | 66 | 24 | 4-Φ23 | 326 | 200 | 40 | 260 | 165 | 125 | 95 | 76 | 26 | 4-Φ23 | 360 | 240 | 50 | 300 | 195 | 145 | 112 | 88 | 28 | 4-Φ25 | 414 | 280 | 65 | 340 | 220 | 170 | 138 | 110 | 32 | 8-Φ25 | 434 | 320 | 80 | 380 | 230 | 1810 | 148 | 121 | 34 | 8-Φ25 | 547 | 360 | 100 | 430 | 265 | 210 | 172 | 150 | 38 | 8-Φ30 | 621 | 400 | 125 | 500 | 310 | 250 | 210 | 176 | 42 | 8-Φ34 | 732 | 400 | 150 | 550 | 350 | 290 | 250 | 204 | 46 | 12-Φ34 | 840 | 450 | 16.0MPa | 200 | 65 | 430 | 360 | 312 | 260 | 54 | 12-Φ41 | 925 | 500 | 凹凸法兰 MFM J41H J41Y J41W 160 160P 160R 160I | 15 | 170 | 110 | 75 | 52 | 40 | 24 | 4-Φ18 | 148 | 140 | 20 | 190 | 130 | 90 | 62 | 51 | 26 | 4-Φ23 | 158 | 160 | 25 | 210 | 140 | 100 | 72 | 58 | 28 | 4-Φ23 | 175 | 180 | 32 | 230 | 165 | 115 | 85 | 66 | 30 | 4-Φ25 | 200 | 200 | 40 | 260 | 175 | 125 | 92 | 76 | 32 | 4-Φ27 | 231 | 240 | 50 | 300 | 215 | 165 | 132 | 88 | 36 | 8-Φ25 | 262 | 280 | 65 | 340 | 245 | 190 | 152 | 110 | 44 | 8-Φ30 | 303 | 320 | 80 | 380 | 260 | 205 | 168 | 121 | 46 | 8-Φ30 | 341 | 360 | 100 | 430 | 300 | 240 | 200 | 150 | 48 | 8-Φ34 | 485 | 400 |
|